株式会社 ミライズ不動産

八戸市/青森市/三沢市/十和田市/おいらせ町/階上町/三戸郡/etc
青森県の不動産探しはミライズ不動産にお任せください

営業時間 / 9:00~17:30 
定休日 / 水曜・木曜・祝日 ℡.0120-933-172

House for sale売買建物 物件一覧

売買建物

更新日:2026年03月03日

\スーパー・コンビニ・バス停が徒歩圏内の中古住宅!/☆市街化調整区域☆リフォームのご相談も承ります♪

価格
280万円
間取
4DK

八戸市大字新井田字松山中野場

掲載内容と現況が異なる場合には
現況優先とさせて頂きます
問合せNo 3638
取引種目 売買建物 取引態様 仲介
価格 280万円 間取り 4DK
所在地 八戸市大字新井田字松山中野場
交通 八戸市営バス「旭ケ丘4丁目」バス停まで徒歩5分です
土地面積 129.87㎡/39.29坪 他、私道面積
建物構造 木造2階建 建物面積 95.22㎡/28.75坪(延床面積)
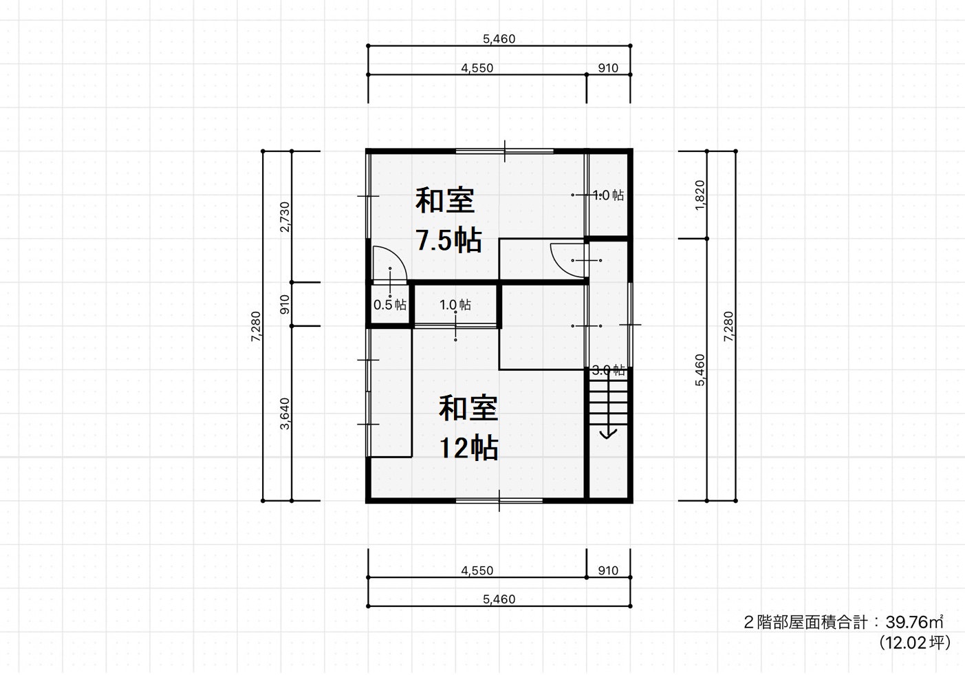
間取内訳 1F:DK6帖、洋室9帖、和室4.5×2   2F:和室1帖、和室7.5帖
接道状況 南西側:幅員約4mの私道(位置指定道路)に約16.5m接道しています
築年月日 昭和45年(1970年)1月10日 現況 空家
引渡し時期 相談 駐車場 なし
土地権利 所有権 地目 宅地
都市計画 調整区域 用途地域 用途指定のない地域
建ペイ率(%) 60 容積率(%) 200
ガス プロパンガス トイレ 簡易水洗
学区(小) 八戸市立旭ケ丘小学校 学区(中) 八戸市立東中学校
備考 ※現況渡し
※市街化調整区域につき再建築には一定の要件が必要です。
※図面と現況に相違がある場合は現況を優先します。
~おススメポイント~
〇スーパー・コンビニ徒歩6分圏内♪ 〇バス停まで徒歩5分♪ 〇小学校まで徒歩7分♪
~周辺環境~
〇やまはる旭ケ丘店まで徒歩4分(約244m)
〇ローソン八戸旭ケ丘一丁目店まで徒歩6分(約427m)
〇旭ケ丘小(約524m)/東中(約1146m)
※物件の詳細を知りたい方はお気軽にお問合せください♪
■ミライズ不動産はタナカホールディングスの一員です。グループ会社のタナカホーム、フジケンザイと共に安心して暮らせるお家探しをお手伝い致します!

一覧に戻る

青森県内の不動産探しは
ミライズ不動産にお任せください

TEL.0120-933-172

営業時間 / 9:00~17:30 
定休日 / 水曜・木曜・祝日

メールでの
お問い合わせはこちら