株式会社 ミライズ不動産

八戸市/青森市/三沢市/十和田市/おいらせ町/階上町/三戸郡/etc
青森県の不動産探しはミライズ不動産にお任せください

営業時間 / 9:00~17:30 
定休日 / 水曜・木曜・祝日 ℡.0120-933-172

House for sale売買建物 物件一覧

売買建物

更新日:2026年03月19日

☆下長第8-1号棟☆新築分譲住宅☆コンビニ徒歩圏内♪シンフォニープラザまで車で約3分♪

価格
2,250万円
間取
4LDK

八戸市下長8丁目16-23付近

掲載内容と現況が異なる場合には
現況優先とさせて頂きます
問合せNo 5051
取引種目 売買建物 取引態様 仲介
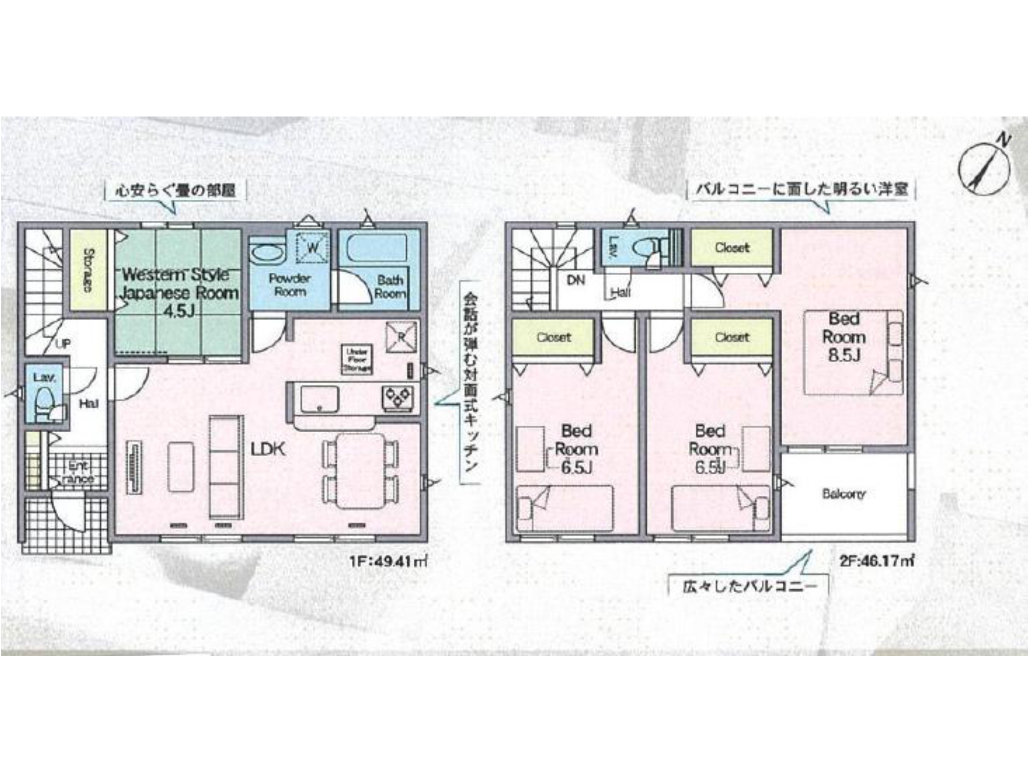
価格 2,250万円 間取り 4LDK
所在地 八戸市下長8丁目16-23付近
交通 JR八戸線「長苗代」駅まで徒歩34分、八戸市営バス「八太郎」バス停まで徒歩3分
土地面積 163.19㎡/49.36坪 他、私道面積
建物構造 木造2階建 建物面積 100.44㎡/30.38坪
間取内訳 1階:LDK 和室4.5帖  2階:洋6.5帖・洋6.5帖・洋8.5帖
接道状況 南東側:幅員6mの公道に4m接する
築年月日 2025年12月 現況 売出中
引渡し時期 即時 駐車場 2台(縦列)
土地権利 所有権 地目 宅地
都市計画 市街化区域 用途地域 第二種中高層住居専用地域
建ペイ率(%) 60 容積率(%) 200
ガス プロパンガス トイレ 洋式水洗(公共下水)
学区(小) 八戸市立根岸小学校 学区(中) 八戸市立北稜中学校
備考 ※この住宅は株式会社アーネストワン様施工の新築建売住宅です。
~おススメポイント~
〇性能評価物件♪ 〇制振装置搭載♪ 〇縦列2台駐車可能♪ 〇基礎断熱仕様♪ 
~周辺環境~
〇ユニバース下長店まで徒歩11分(約835m)
〇ミニストップ下長8丁目店まで徒歩約4分(約307m)
〇根岸小(690m)/北稜中(1500m)
※物件の詳細を知りたい方はお気軽にお問合せください♪
■ミライズ不動産はタナカグループホールディングスの一員です。グループ会社のタナカホーム、フジケンザイと共に安心して暮らせるお家探しをお手伝い致します!

一覧に戻る

青森県内の不動産探しは
ミライズ不動産にお任せください

TEL.0120-933-172

営業時間 / 9:00~17:30 
定休日 / 水曜・木曜・祝日

メールでの
お問い合わせはこちら