株式会社 ミライズ不動産

八戸市/青森市/三沢市/十和田市/おいらせ町/階上町/三戸郡/etc
青森県の不動産探しはミライズ不動産にお任せください

営業時間 / 9:00~17:30 
定休日 / 水曜・木曜・祝日 ℡.0120-933-172

House for sale売買建物 物件一覧

売買建物

更新日:2026年03月19日

☆長者第6-2号棟☆新築分譲住宅☆1階に嬉しい和室あり♪長者小学校まで6分♪♪

価格
2,150万円
間取
4LDK

八戸市長者3丁目27-1の一部

掲載内容と現況が異なる場合には
現況優先とさせて頂きます
問合せNo 5049
取引種目 売買建物 取引態様 一般
価格 2,150万円 間取り 4LDK
所在地 八戸市長者3丁目27-1の一部
交通 八戸市営バス「平中通」バス停から徒歩7分
土地面積 187.96㎡㎡/56.85坪 他、私道面積
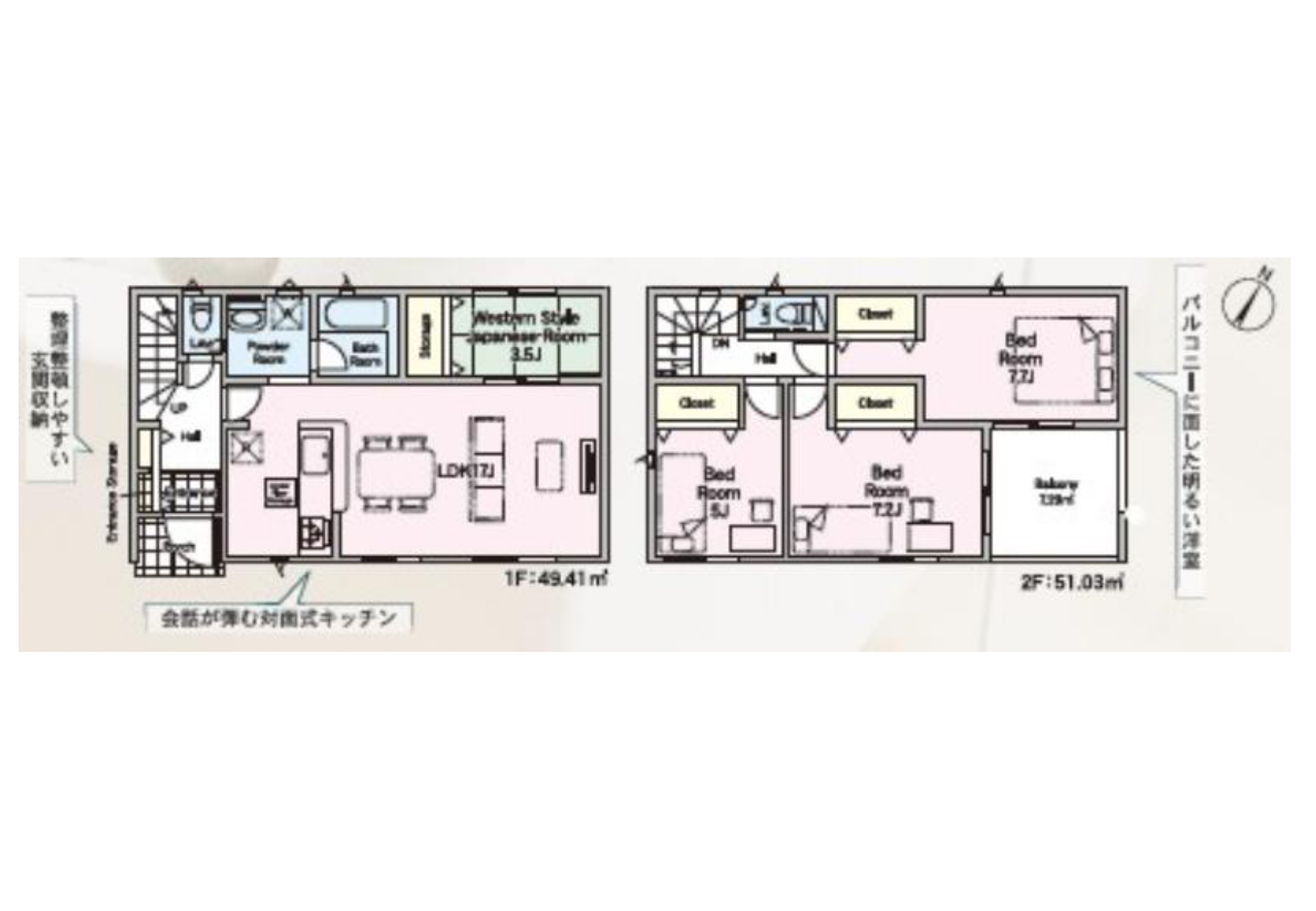
建物構造 木造2階建 建物面積 100.44㎡/30.38坪
間取内訳 1階:LDK17帖 和室3.5帖 2階:洋室5帖 洋室7.2帖 洋室7.7帖
接道状況 公道南西側幅員約4.3m
築年月日 2026年6月予定 現況 売出中
引渡し時期 2026年6月予定 駐車場 2台
土地権利 所有権 地目 宅地
都市計画 市街化区域 用途地域 第二種中高層住居専用地域
建ペイ率(%) 60 容積率(%) 200
ガス プロパンガス トイレ 洋式水洗(公共下水)
学区(小) 八戸市立長者小学校 学区(中) 八戸市立長者中学校
備考 ※この住宅は株式会社アーネストワン様施工の新築建売住宅です。
~おススメポイント~
〇性能評価物件♪ 〇制振装置搭載♪ 〇縦列2台駐車可能♪ 〇基礎断熱仕様♪ 
~周辺環境~
〇マックスバリュー八戸上組店まで車で2分(約950m)
〇セブンイレブン八戸大杉平店まで徒歩約8分(約600m)
〇長者小(450m)/長者中(1300m)
※物件の詳細を知りたい方はお気軽にお問合せください♪
■ミライズ不動産はタナカグループホールディングスの一員です。グループ会社のタナカホーム、フジケンザイと共に安心して暮らせるお家探しをお手伝い致します!

一覧に戻る

青森県内の不動産探しは
ミライズ不動産にお任せください

TEL.0120-933-172

営業時間 / 9:00~17:30 
定休日 / 水曜・木曜・祝日

メールでの
お問い合わせはこちら